Prodej rodinného domu 3+1 v Tlučné
5.500.000 Kč
Hlavní 109
↓
5.500.000 Kč
Hlavní 109
↓
Představuji vám k prodeji rodinný dům na adrese Hlavní 109, Tlučná, jen několik minut západně od Plzně.
O obci Tlučná:
Tlučná je oblíbená a klidná obec s výbornou dostupností do Plzně – autem se na její okraj dostanete za 10 minut. Obec nabízí základní občanskou vybavenost – školu, školku, obchody, restaurace i sportovní areál. Okolní příroda vybízí k procházkám, cyklovýletům i klidnému rodinnému životu.
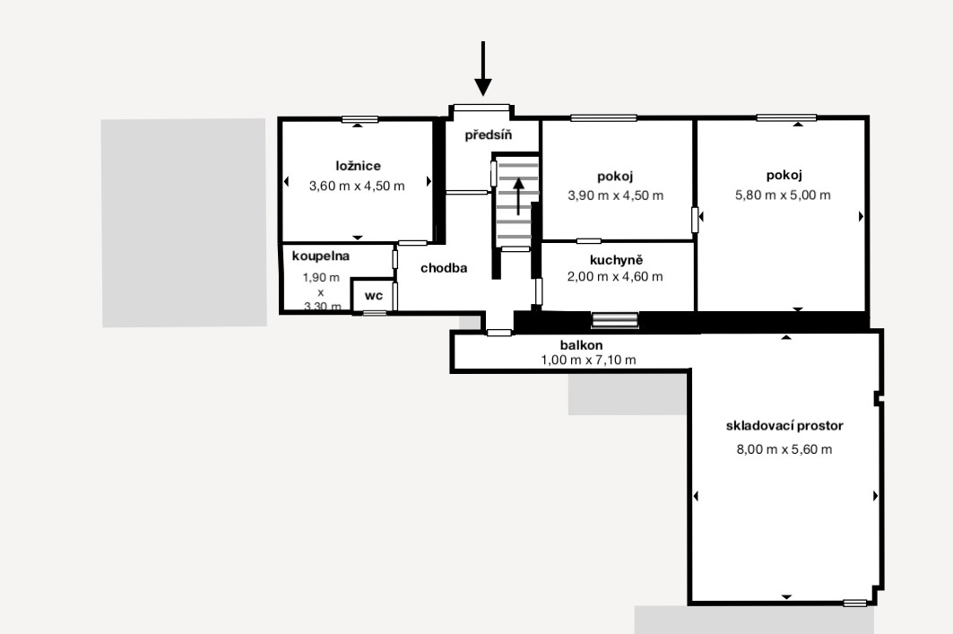
Dispozice domu:
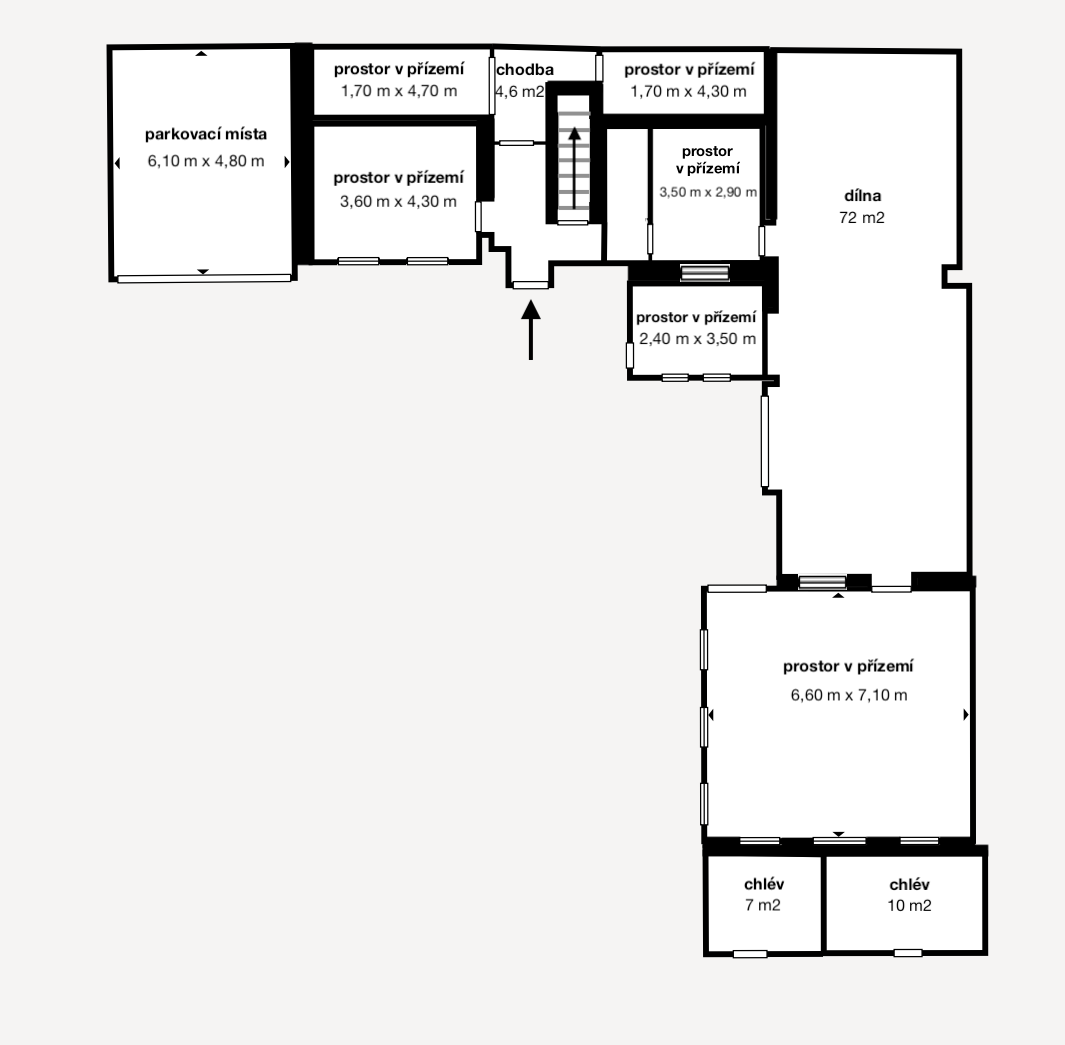
Dům je řešen ve dvou úrovních – vstupní část a obytné prostory se nacházejí v horní úrovni od silnice, zatímco v nižší části směrem do zahrady jsou situovány technické místnosti, prádelna a sušárna s přímým vstupem na pozemek.
Součástí domu je také přistavěná dílna, a na pozemku se nachází bývalé zemědělské stavby – například chlévy, které lze přetvořit na sklad, garáž nebo prostor pro hobby či drobné podnikání.
V obytné části se nachází kuchyně, obývací pokoj, dva pokoje a koupelna s WC.
Nad obytnou částí je půdní prostor, vhodný pro uskladnění věcí.
Technické informace:
• Elektřina: 230 / 400 V
• Plyn: zaveden do domu
• Kanalizace: obecní
• Voda: přivedena ze studny, vodárna v domě
• Ohřev vody: elektrický bojler
• Vytápění: plynový kondenzační kotel Vaillant; k dispozici je také odpojený kotel na tuhá paliva, který lze znovu připojit
Zahrada má výměru přibližně 900 m² a nabízí dostatek prostoru pro odpočinek i zahrádkářské využití.
Pro prodej domu zajišťuji kompletní realitní a právní servis a případně i financování hypotečním úvěrem.
Kontaktujte mě prosím pro domluvení prohlídky:
Miroslav Hlaváč
TAURUM reality s.r.o.
Uvedené výměry jsou orientační.
přízemí

obytné patro

půda

Miroslav Hlaváč
727 868 434
Jsem realitní specialista,
zajišťuji prodej tohoto domu
a případné financování hypotečním úvěrem.
Svým klientům pomáhám prodat jejich nemovitost bezpečně, lépe a za více.
Kupujícím zajišťuji financování hypotékou.
Spolupracuji s týmem profesionálů: fotograf, kameraman, grafik, hypoteční analytici, advokát.
Podívejte se, jak pracuji při prodeji nemovitostí:
TAURUM reality s.r.o.
Kopeckého sady 8, 301 00 Plzeň
Při zájmu o prohlídku vyplňte, prosím, formulář níže, ozvu se vám...